1. ArchDaily
  2. Crisis Climática

Crisis Climática: Las más recientes noticias y obras de arquitectura

Materiales: Ventanas, Componentes y Detalles

Hace un tiempo hicimos un acercamiento a las Ventanas desde su evolución histórica y diseño actual; hoy queremos enfocarnos en su lado constructivo, sus componentes y posibilidades materiales. Sin más preámbulo, los invitamos a entender cómo se construye una ventana y qué opciones existen hoy para incluir en nuestros proyectos.

Ferrocemento, una opción modular al Hormigón Armado

El Ferrocemento es una opción modular al hormigón armado, formada por una combinación de malla de acero y mortero. El módulo resultante se compone de láminas delgadas en las que la malla se distribuye por toda la masa del cemento, evitando grietas y resistiendo de buena manera al impacto y la fatiga; es un material liviano, flexible y con una alta resistencia a la tracción y a la compresión.

El sistema es confortable térmica y acústicamente (en base a una menor conductividad térmica), impermeable y resistente a la corrosión de la armadura (al tener menos fisuras) y de bajo costo, gracias a su facilidad de construcción y reparación por personal no especializado.

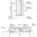
Materiales: Pisos Elevados

Algunos proyectos necesitan canalizar una gran cantidad de instalaciones y sistemas para funcionar; otros necesitan espacios de diferentes alturas de acuerdo a sus diferentes usos. Para lograr estos objetivos sin tener que complejizar el corte del edficio, es posible incorporar Pisos Elevados, conformados a partir de un sistema de paneles modulares montados sobre pedestales o gatas regulables.

Además de absorber fácilmente los desniveles del piso, mejorar las cualidades de aislación y acústica entre niveles y facilitar la revisión de las instalaciones, los pisos elevados entregan una mayor flexibilidad en planta al liberar el cielo, que ya no depende, por ejemplo, de la ubicación de los difusores de aire en el cielo para definir la configuración de las oficinas. Del mismo modo, también se pueden generar superficies planas en exteriores.

Revisa sus componentes, modelos y formas de instalación -directamente desde nuestro catálogo de materiales-, después del salto.

Materiales: Pisos Elevados - Image 12 of 4

Experiencia MUVA: Un muro de ladrillos con su ausencia final

Utilizando hormigón y ladrillos crudos de barro, los arquitectos Solanito Benítez, Solano Benítez, Gloria Cabral, María Rovea y Ricardo Sargiotti han construido un muro quebrado que se levanta inicialmente gracias al trabajo en conjunto de los dos materiales. Una vez seco el hormigón, se han lavado los ladrillos para que el barro vuelva a su estado natural, dejando como huella las líneas de concreto, como una especie de "negativo".

Esta intervención se realizó en el contexto de la muestra de arte MUVA en Unquillo, Córdoba, Argentina entre el 11 de abril y el 3 de mayo de 2014.

Más información e imágenes, a continuación.

Experiencia MUVA: Un muro de ladrillos con su ausencia final - Image 1 of 4Experiencia MUVA: Un muro de ladrillos con su ausencia final - Image 2 of 4Experiencia MUVA: Un muro de ladrillos con su ausencia final - Image 3 of 4Experiencia MUVA: Un muro de ladrillos con su ausencia final - Image 4 of 4Experiencia MUVA: Un muro de ladrillos con su ausencia final - Más Imágenes+ 12

Materiales: Marcos y Molduras

Los Marcos y Molduras son dos elementos que parecen pasar desapercibidos al momento de observar y analizar una obra de arquitectura, pero están presentes en la gran mayoría de los proyectos que se construyen hoy en día, alrededor del mundo, y sin duda todo arquitecto se encontrará con ellos alguna vez en su carrera. Son piezas que alguna vez gozaron de una fuerte presencia e importancia en la arquitectura clásica -como escultóricos remates en fachadas y vanos-, pero que han dejado atrás este carácter expresivo para centrarse en una funcionalidad más discreta, pero totalmente necesaria.

Revisa con más detalle sus eficientes modelos actuales en madera a partir de nuestro catálogo de materiales de construcción, a continuación.

Materiales: Tabiques

Un tabique es un muro no estructural que permite separar y sub-dividir recintos, siendo generalmente un elemento fijo y opaco que puede ser instalado en cualquier parte del interior siempre cuando no le aporte una sobrecarga. Este dispositivo debe cumplir con un cierto aislamiento térmico, acústico y con una resistencia mecánica mínima, permitiendo la fijación de objetos y la inclusión de instalaciones técnicas sin disminuir su resistencia; sumando nuevas exigencias de acuerdo al programa del edificio.

Revisa detalles técnicos de su forma de instalación más tradicional y algunas de las nuevas opciones de tabiquería recopiladas a partir de nuestro catálogo de materiales de construcción, a continuación.

Materiales: Tabiques - Image 4 of 4Materiales: Tabiques - Image 3 of 4Materiales: Tabiques - Image 2 of 4Materiales: Tabiques - Image 1 of 4Materiales: Tabiques - Más Imágenes+ 7

Materiales: Especificación de Divisiones Interiores

Muchos de los proyectos que nos encontramos día a día en Plataforma Arquitectura se configuran espacialmente en base a plantas libres con divisiones interiores flexibles, a través de las cuales se definen las dimensiones variables del espacio o los diferentes grados de abertura o privacidad. Para lograr esta cualidad existen opciones que van desde la total transparencia hasta las divisiones opacas, pasando por alternativas móviles o translúcidas.

A continuación, agrupamos una serie de dispositivos que te podrán ayudar a realizar las especificaciones técnicas en tu proyecto.

Materiales: Especificación de Divisiones Interiores - Image 3 of 4Materiales: Especificación de Divisiones Interiores - Image 17 of 4Materiales: Especificación de Divisiones Interiores - Image 20 of 4Materiales: Especificación de Divisiones Interiores - Image 4 of 4Materiales: Especificación de Divisiones Interiores - Más Imágenes+ 17

Materiales: Especificación de Cielo Falso

Esta semana entramos en el mundo de los cielos falsos, un tema que no hemos tocado en profundidad en Plataforma Arquitectura y que puede serte útil al momento de realizar las especificaciones de tu proyecto. Este elemento constructivo permite generar mejores condiciones térmicas y acústicas en el interior de los edificios, además de esconder las instalaciones, y generalmente se construye en base a piezas prefabricadas unidas por fijaciones metálicas.

Compartimos con ustedes una serie de opciones de cielos que puedes aplicar en tu proyecto, ordenados por categorías: Metal, Madera, Acústicos y Fibra Mineral.

Materiales: Especificación de Cielo Falso - Image 4 of 4Materiales: Especificación de Cielo Falso - Image 20 of 4Materiales: Especificación de Cielo Falso - Image 21 of 4Materiales: Especificación de Cielo Falso - Image 22 of 4Materiales: Especificación de Cielo Falso - Más Imágenes+ 18

¿Cómo unir las varas de Bambú?

El Bambú, como material, no sólo se posee bondadosas propiedades físico-mecánicas, sino que se caracteriza por su favorable capacidad de renovación, ya que es una planta de rápido crecimiento. Esto hace que su uso sea altamente adecuado para la realización de obras de bajo impacto ecológico.

Entonces, cuando hablamos de un material resistente, duradero, ecológico y sostenible, que sirve como estructura portante, revestimiento, sombra, piso, entre muchos otros, estamos hablando de una sustancialidad, que en el contexto de la crisis ambiental global, propone un cambio de paradigma en torno a la economía energética de los procesos industriales de construcción tradicional.

Bajo esta lógica, hacemos una revisión de las características fundamentales de este material. Buscamos entender cómo se ha utilizado y cómo se han ingeniado sus diversos sistemas de uniones, cortes y usos.

¿Cómo unir las varas de Bambú? - Sustentabilidad¿Cómo unir las varas de Bambú? - Sustentabilidad¿Cómo unir las varas de Bambú? - Sustentabilidad¿Cómo unir las varas de Bambú? - Sustentabilidad¿Cómo unir las varas de Bambú? - Más Imágenes+ 5

Materiales: ¿Necesitas especificar Revestimientos?

Durante las últimas fases de diseño de un proyecto, los arquitectos debemos definir una serie de especificaciones técnicas que permitirán concretar la construcción de nuestra obra. Es en este momento donde la idea en nuestra mente se acerca a su materialización y por eso es importante conocer muy bien los productos disponibles; sus propiedades, dimensiones, ventajas y posibilidades de aplicación, entre muchos otros aspectos.

En Plataforma Arquitectura te damos la inspiración y en nuestra sección de Materiales te apoyamos a la hora de llevarla a la realidad. Es por eso que hoy te presentamos una gama de revestimientos en madera, metal y vidrio que te ayudarán a realizar tus especificaciones.

Materiales: ¿Necesitas especificar Revestimientos? - Image 15 of 4Materiales: ¿Necesitas especificar Revestimientos? - Image 16 of 4Materiales: ¿Necesitas especificar Revestimientos? - Image 17 of 4Materiales: ¿Necesitas especificar Revestimientos? - Image 18 of 4Materiales: ¿Necesitas especificar Revestimientos? - Más Imágenes+ 15

Baños para viviendas: arquitectura y ejemplos de diseño

Una de nuestras misiones es entregar inspiración a los arquitectos a la hora de proyectar. Es por eso que presentaremos una serie de artículos en donde pondremos el foco en elementos particulares, constitutivos y fundamentales de toda obra de arquitectura, recopilando los mejores diseños a partir de las obras publicadas en nuestro sitio.

La selección fue escogida a partir de uno de nuestros boards en Pinterest, los que se nutren día a día con nuevas ideas inspiradoras.

Hoy hablamos del Baño, un espacio que ha ido dejando atrás su relevancia puramente higiénica para entrar en la zona exclusiva del diseño.

Materials: Ayudando a materializar la inspiración de los arquitectos

Queridos Lectores,

En Plataforma Arquitectura estamos constantemente buscando ser una fuente de inspiración, de conocimiento y de herramientas para los arquitectos de toda Hispanoamérica. Cada cambio que hemos realizado y las diversas iniciativas que estamos desarrollando en el último tiempo, apuntan a cumplir con esta misión como medio especializado en arquitectura.

Muchos de ustedes revisan nuestro sitio a diario en búsqueda de inspiración para su trabajo, en las diferentes fases a las que se ven enfrentados durante el desarrollo de un proyecto de arquitectura; desde el momento en el que se están gestando las primeras ideas, hasta el desarrollo de detalles constructivos y la elección de materiales, como revestimientos, cielos, pisos, luminarias, terminaciones y artefactos.

Nuestro Catálogo, ha funcionado de esta manera, como herramienta de búsqueda de un material o producto en particular, entregando además la posibilidad de contactarse directamente con su proveedor. Hoy estamos muy contentos de poder presentarles actualizaciones en nuestro Catálogo, las cuales apuntan a mejorar esta sección cuyo objetivo es materializar la inspiración de los arquitectos, y que desde hoy llamaremos “Materials”.

Puente Peatonal de Bambú es construído por la comunidad de Davao en Filipinas

El asentamiento informal de Matina, en la ciudad de Davao, Filipinas, está atravesado por un río y sólo es posible llegar al lugar a través de algunos viejos puentes improvisados. En febrero de 2010, la Federación de Matina acoge un taller de diseño -con el apoyo de un grupo de arquitectos locales liderados por Andrea Fitrianto- que exploró las tecnologías en bambú para construir un nuevo puente peatonal para la comunidad.

Más información e imágenes del proceso constructivo comunitario, después del salto.

Puente Peatonal de Bambú es construído por la comunidad de Davao en Filipinas - SustentabilidadPuente Peatonal de Bambú es construído por la comunidad de Davao en Filipinas - SustentabilidadPuente Peatonal de Bambú es construído por la comunidad de Davao en Filipinas - SustentabilidadPuente Peatonal de Bambú es construído por la comunidad de Davao en Filipinas - SustentabilidadPuente Peatonal de Bambú es construído por la comunidad de Davao en Filipinas - Más Imágenes+ 8

Nuevos materiales: Ladrillos cerámicos impresos en 3D para la construcción a gran escala

Brian Peters, co-fundador de Design Lab Workshop, con sede en Amsterdam, ha estado trabajando con impresoras 3D desde hace varios años, incursionando actualmente en el diseño de bloques para la construcción. A través de un programa en el Centro de Trabajo de Cerámica Europea, Peters desarrolló una serie de ladrillos cerámicos que pueden levantar muros y otras estructuras personalizadas. Más información e imágenes a continuación.

Nuevos materiales: Ladrillos cerámicos impresos en 3D para la construcción a gran escala - Image 3 of 4Nuevos materiales: Ladrillos cerámicos impresos en 3D para la construcción a gran escala - Image 10 of 4Nuevos materiales: Ladrillos cerámicos impresos en 3D para la construcción a gran escala - Image 11 of 4Nuevos materiales: Ladrillos cerámicos impresos en 3D para la construcción a gran escala - Image 12 of 4Nuevos materiales: Ladrillos cerámicos impresos en 3D para la construcción a gran escala - Más Imágenes+ 9

Infografía: El Acero y la Arquitectura

Infografía: El Acero y la Arquitectura - Imagen Principal

Restauración estructural del Adobe y Geomalla, por 123cua Arquitectos

El encargo se presenta como un desafío a nuestra oficina. Restaurar tres construcciones de gran tamaño y valor patrimonial, construidas en adobe, que después del terremoto se vieron fuertemente afectadas.

Windowfarms: Huertas inteligentes al interior de los edificios

Windowfarms: Huertas inteligentes al interior de los edificios - Image 1 of 4Windowfarms: Huertas inteligentes al interior de los edificios - Image 2 of 4Windowfarms: Huertas inteligentes al interior de los edificios - Image 3 of 4Windowfarms: Huertas inteligentes al interior de los edificios - Image 4 of 4Windowfarms: Huertas inteligentes al interior de los edificios - Más Imágenes+ 10

Windowfarms es un proyecto medioambiental y social que busca generar ciudades sustentables en base a la disposición de huertas inteligentes al interior de los edificios. La propuesta funciona a través de la acción específica de cada familia o comunidad, pero el objetivo es que la suma de todas ellas genere un impacto aún mayor.