
-
Arquitectos: Luciano Kruk
- Área: 753 m²
- Año: 2019
-
Fotografías:Daniela Mac Adden

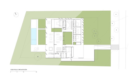
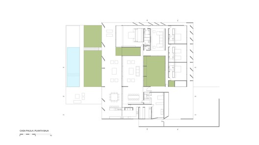
Descripción enviada por el equipo del proyecto. Un proyecto donde confluyen la conexión con la naturaleza, la valoración del diseño y la predisposición para el trabajo en equipo.































