
-
Arquitectos: Díaz Webster Arquitectura
- Área: 237 m²
- Año: 2024
-
Fotografías:Rafael Palacios Macías

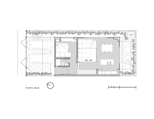
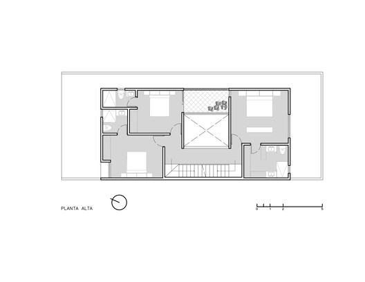
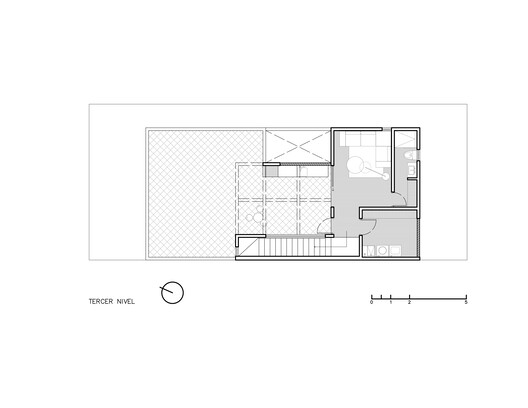
Descripción enviada por el equipo del proyecto. Ubicada en un fraccionamiento residencial al poniente de Zapopan, Casa Bosques Vallarta surge como un ejercicio de síntesis y funcionalidad, en el que la sobriedad volumétrica y la conexión con el exterior guían el diseño.


























