
-
Arquitectos: VAILLO + ARCHITECTS
- Área: 22904 m²
- Año: 2025
-
Fotografías:Rubén Pérez Bescós

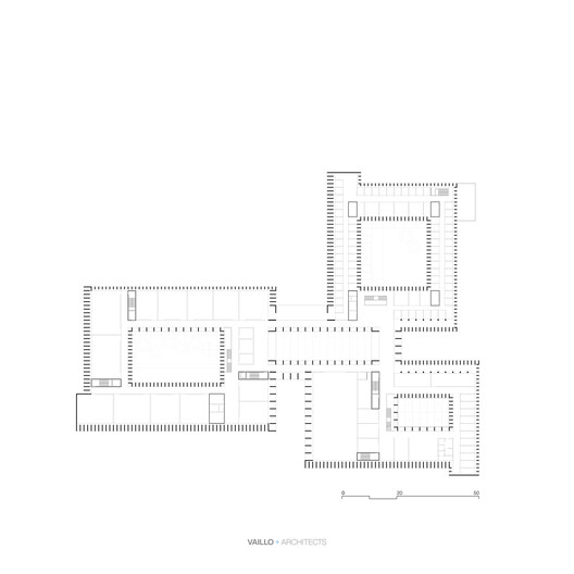
Tipología y Tradición - Tipológicamente el edificio sigue la tradición de la arquitectura docente basada en un sistema de agregación de volúmenes en torno a patios, recuperando el "claustro" como sistema organizativo, remitiendo a una arquitectura mediterránea donde el clima propicia espacios abiertos y ajardinados conformando diferentes tipologías de patios.


































