
-
Arquitectos: Baral Studio
- Área: 270 m²
- Año: 2025
-
Fotografías:Cortesia de Baral Studio

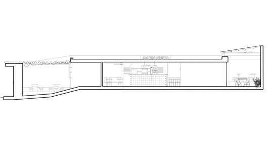
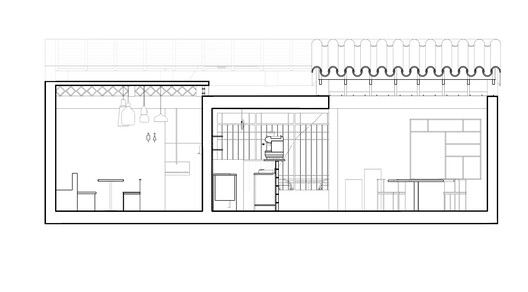
Descripción enviada por el equipo del proyecto. Ubicado en el corazón de Bucaramanga, Nola Café & Cocina es un proyecto de reconversión arquitectónica que transforma una vivienda tradicional de mediados del siglo XX en un espacio contemporáneo dedicado a la gastronomía y el encuentro social.



























