
-
Arquitectos: tresunouno
- Área: 588 m²
- Año: 2022
-
Fotografías:Cortesia de tresunouno
-
Proveedores: Años Luz Iluminación, Dica, Persiana Barcelona

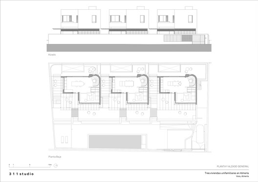
Descripción enviada por el equipo del proyecto. Proyecto de tres viviendas unifamiliares en hilera, adosadas bajo rasante e independientes sobre rasante en Puerto Rey, en el municipio de Vera (Almería). Las tres casas comparten una zona comunitaria de jardín y piscina a la vez que cuentan con espacios exteriores de carácter privativo. Con el doble objetivo de evitar las inundaciones habituales en la zona y de facilitar la ventilación cruzada, se elevó la planta baja de las viviendas hasta el máximo permitido por la normativa y se trabajó la parcela en 3 niveles: una cota de acceso a la parcela, situada al nivel de la calle; un nivel intermedio donde se ubica la piscina, para preservar su privacidad; y un nivel superior, que permite el acceso a la planta baja de las viviendas.

















