
-
Arquitectos: BARRA Arquitetos
- Área: 90 m²
- Año: 2025
-
Fotografías:Manuel Sá
-
Proveedores: Atena, Faro Design, RESIDENCIAL Móveis

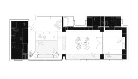
Descripción enviada por el equipo del proyecto. Proyecto de interiores para un apartamento de aproximadamente 90 m² en un condominio nuevo, originalmente compartimentado en dos dormitorios y una suite. Sin embargo, desde la primera visita quedó claro que los clientes tenían otros planes: contar con una vivienda fluida, amplia, abierta e integrada.




































