
-
Arquitectos: av group.
- Área: 650 m²
- Año: 2024
-
Fotografías:Cortesia de av group.
-
Proveedores: Alufran , Hormigones del Uruguay , MED Ingenieria, Maguinor Maderas

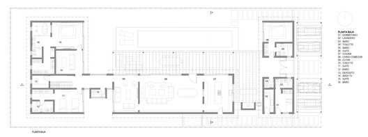
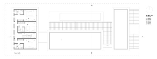
Descripción enviada por el equipo del proyecto. Casa Ignacia, se implanta en el paisaje de José Ignacio como una vivienda de verano concebida para ser habitada durante todo el año, estableciendo un diálogo equilibrado entre arquitectura, clima y territorio.
















