
-
Arquitectos: ARKHITEKTON, Hector Navarro
- Área: 150 m²
- Año: 2025
-
Fotografías:William Mulvihill
-
Proveedores: Rothoblaas, Strugal, Acaminetti, LA ESCANDELLA

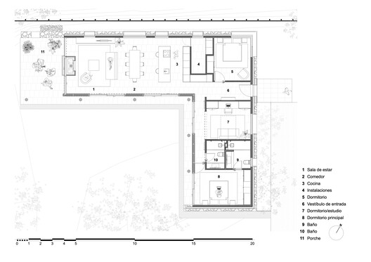
Descripción enviada por el equipo del proyecto. Ubicada en la Sierra de Ibio, Cantabria, la casa se encuentra dentro de un pequeño pueblo que preserva tanto la estructura urbana como la coherencia rural de su paisaje, aún intacto por las transformaciones que han alterado otros asentamientos cercanos. El proyecto surge del deseo de integrarse en este contexto, aceptando las limitaciones de la normativa local que exige continuidad formal y material con la arquitectura tradicional, mientras se explora desde una perspectiva contemporánea cómo reinterpretar ese legado sin caer en la reproducción literal.




























