
-
Arquitectos: Murillo Arquitectos
- Área: 306 m²
- Año: 2025
-
Fotografías:Manu Luque Fotografía
-
Proveedores: Ecoclay

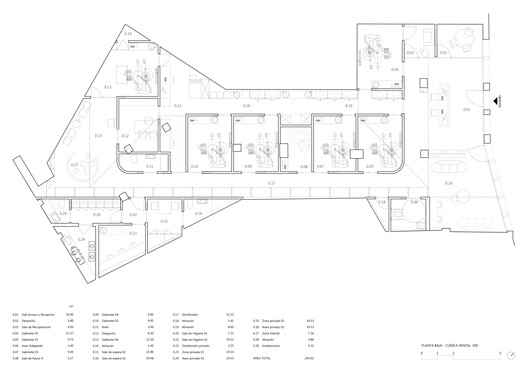
Descripción enviada por el equipo del proyecto. La reforma integral de la Clínica Dental MD transforma un local profundo, de geometría irregular y con escasa luz natural en un espacio sanitario luminoso, cercano y abierto a la ciudad. El proyecto surge de la voluntad de alejarse de la imagen clínica convencional y construir una experiencia espacial calmada, donde la arquitectura acompaña emocionalmente al usuario.
























