
-
Arquitectos: MH.AP Studio, Sergi Serrat
- Área: 710 m²
- Año: 2024
-
Fotografías:Pol Masip

Descripción enviada por el equipo del proyecto. Propuesta ganadora en colaboración con Sergi Serrat para construir los nuevos vestuarios y una sala multiusos para un centro deportivo en Ripoll, un pequeño pueblo en Catalunya rodeado de montañas. El complejo ya tenía un carácter distintivo moldeado por los edificios alrededor del campo de fútbol, como las gradas, el bar y otras dos estructuras. Nuestra intención no era crear un elemento que se apartara de esta configuración existente, sino incorporar un nuevo vecino que se sintiera parte del todo.



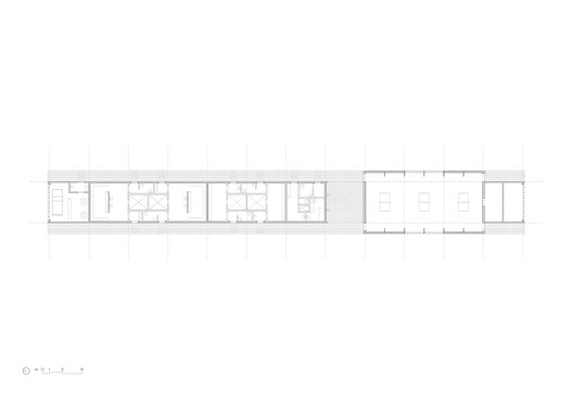
Siguiendo la proporción horizontal del bajo edificio de ladrillo al otro lado de la cancha, diseñamos un plano largo dividido en dos volúmenes. El techo a dos aguas alberga los vestuarios y las salas de los entrenadores, con entradas a ambos lados. Este techo luego crece en altura, transicionando a una sola pendiente para lograr un espacio más grande que contiene la sala multiusos. Los dobles corredores exteriores permiten la circulación perimetral bajo un alero.



El techo de los vestuarios descansa sobre un sistema modular de cerchas de madera soportadas por muros de ladrillo. En la sala multiusos, mitigamos las cargas de viento incorporando tensores de acero en un sistema de marco de portal, reduciendo las secciones de las columnas para bajar los costos de construcción. El área semi-cubierta entre los vestuarios y la sala multiusos sirve como un punto de acceso sombreado al campo de fútbol.






















