
-
Arquitectos: taller de arquitectura de bogotá
- Área: 19163 m²
- Año: 2023
-
Fotografías:Alejandro Arango

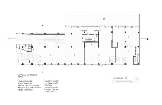
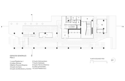
Descripción enviada por el equipo del proyecto. Este proyecto surge del Plan Maestro de Infraestructura 2008-2028 para atender el área de Educación Continua y posgrados, por lo tanto su nacimiento obedece a una segunda alternativa en el norte de la Ciudad para estudiantes de extensión, en esta zona de Bogotá con crecimiento importante de oficinas y residencia. El predio dónde se implanta este proyecto es frente a una vía primaria de la ciudad de amplia sección vial (100 mts) y un abundante flujo constante de vehículos, por lo tanto se formuló un edificio que responde a dos premisas: la de valorar la condición de un volumen que se aprecie de manera diversa según la dirección y velocidad de aproximación, y por otra parte humanizar la difícil condición urbana a través de la implementación de un jardín-balcón de acceso en segundo piso, que convierte el ingresar al edificio en un evento de disfrute.

















