
-
Arquitectos: taller de arquitectura de bogotá
- Área: 11812 m²
- Año: 2024
-
Fotografías:Alejandro Arango

Descripción enviada por el equipo del proyecto. Ubicado en la entrada principal del campus central de la Universidad Industrial de Santander, el edificio de Ciencias Humanas se erige como una pieza clave dentro del plan maestro de la institución. Su diseño se basa en una estructura de linealidades apiladas en concreto arquitectónico, que no solo define una imagen emblemática de bienvenida, sino que también proporciona espacios para la expansión académica.



En la planta baja, el edificio responde a la inclinación natural del terreno mediante un basamento doble que genera dos niveles de acceso. Estos "primeros pisos" funcionan como extensiones del espacio público: abiertos, lúdicos y comunitarios. El nivel inferior se convierte en una topografía artificial con dunas que albergan el centro de visitantes del observatorio astronómico, mientras que el segundo nivel cuenta con placas desencajadas que generan balcones y zonas para el encuentro informal. Ambos niveles se conectan a través de una escalera de estancia con plataformas colgantes, fortaleciendo la circulación y el uso activo del edificio.



La torre principal, orientada de norte a sur, está conformada por placas longitudinales desfasadas en concreto ocre que filtran la luz solar directa y permiten amplias vistas al entorno. Esta estrategia pasiva de control climático se complementa con aleros y circulaciones perimetrales que expanden los espacios de aprendizaje y actúan como protección solar. En algunos casos, las placas se pliegan verticalmente para mejorar su eficacia en el trópico.


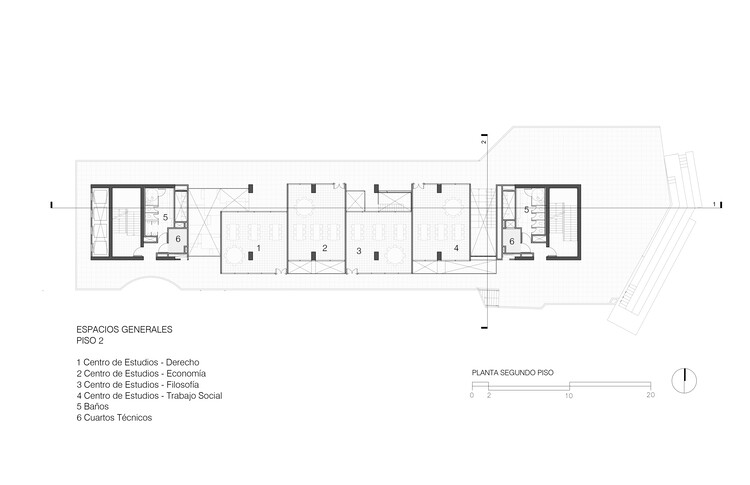
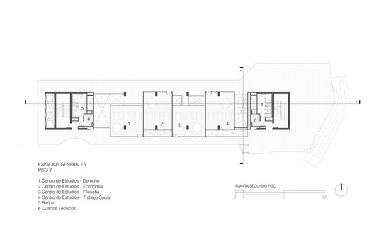
Además de las dos circulaciones verticales tradicionales, se han incorporado recorridos lúdicos y escaleras abiertas que fomentan el recorrido peatonal y la conexión visual con el paisaje. En cuanto a su programa, el edificio distribuye los usos de manera gradual en la base se encuentran espacios de interacción como la cafetería y asociaciones estudiantiles; en los niveles medios, aulas y cabinas; y en los superiores, espacios de bienestar y oficinas para el cuerpo docente.

Estructuralmente, se apoya en dos núcleos rígidos ubicados en los extremos, lo que libera el espacio central y permite una planta flexible para adaptaciones futuras. El concreto con pigmento ocre utilizado en el cuerpo principal hace referencia a los muros de tierra de la región, mientras que los núcleos y columnas contrastan con un acabado en concreto gris convencional.













