
-
Arquitectos: A3 Luppi Ugalde Winter
- Área: 1872 m²
- Año: 2025
-
Fotografías:Javier Agustion Rojas

Descripción enviada por el equipo del proyecto. Un silencio abstracto en el perfil compacto de la manzana. Un juego de patios interiores y terrazas verticales que reinterpretan el concepto de frontera municipal y genera una relación fluida de espacios. Es en este marco que el edificio potencia el vínculo entre el interior y el exterior en un diálogo entre lo público y lo privado y una forma de habitar que desdibuja y desafía el concepto de límite. Como bien señaló Thomas Fuller, "todo es muy difícil antes de ser sencillo", y este principio atraviesa la propuesta desde sus inicios.


La propuesta plantea desde el comienzo el estudio de las oportunidades del lote que, por sus dimensiones muy acotadas y su profundidad (menos de 16m), no requería ningún retiro de fondo. Por otro lado, y por las características de la manzana, el mismo queda exento del centro libre de manzana. Esta particularidad permite la construcción de la superficie completa de la planta y la posibilidad de proyectar toda la morfología de la silueta habilitada por la normativa urbanística.

Cabe destacar que esta opción era posible maximizando las superficies de ingreso de aire y luz. Es desde esta reflexión que aparece el concepto de porosidad, donde operaciones de sustracción permitían el desarrollo de las plantas profundas sin resignar calidad ambiental, iluminación y flexibilidad. Actualmente, y más profundamente luego de la pandemia, hemos empezado a valorar el contacto con el aire libre, no solamente para ventilación sino como espacios principales a la hora de disfrutar del habitar cotidiano.

Este edificio, desde su génesis, se plantea vivir "entre patios". Este propósito se logra a través de una doble piel o juego de filtros que incorpora una complejidad espacial y arma una grilla tridimensional a modo de jardines colgantes donde se funde el interior de las unidades con la ciudad. El acceso a los departamentos se genera a través de patios o zaguanes, donde se ubican parrillas y lugares para dejar bicicletas.



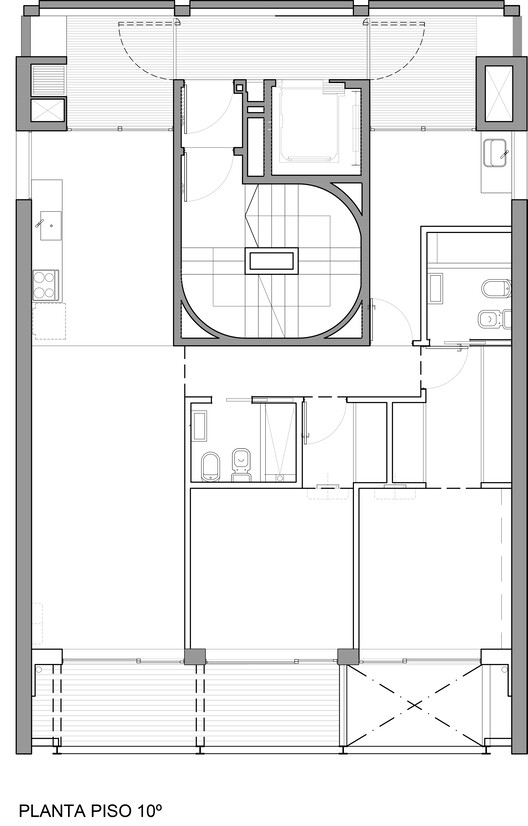
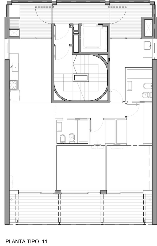
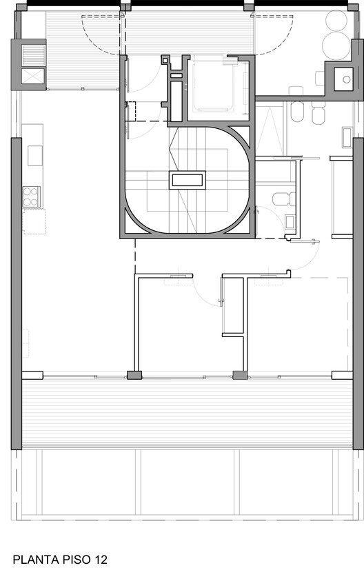
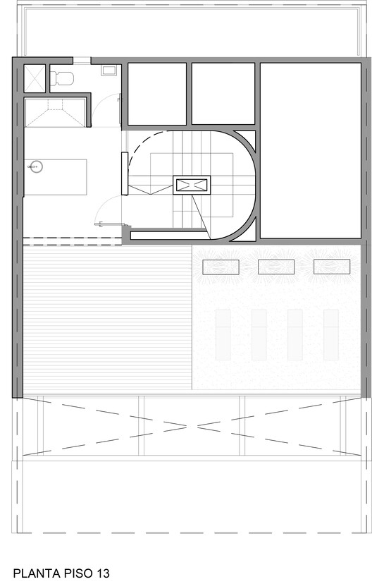
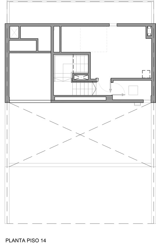
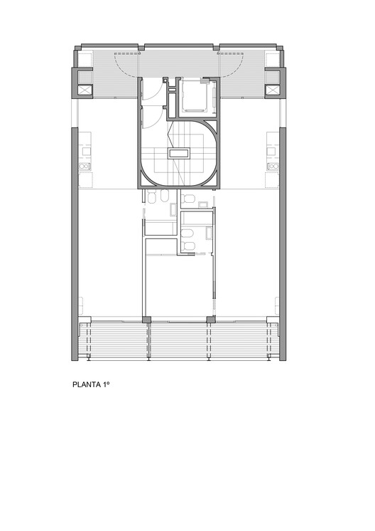
Esta secuencia de pulmón–patio–departamento–expansión–ciudad se transforma en la hipótesis principal de trabajo del edificio. El edificio cuenta con 13 pisos: una planta baja donde se desarrolla el hall de acceso y un local comercial, y un subsuelo de servicios. Las plantas tipo, del 1º al 9º, cuentan con dos departamentos de uno y dos ambientes, mientras que en los pisos 10º, 11º y 12º se ubican unidades únicas de tres ambientes.


En cuanto a la impronta del edificio, la idea es transmitir abstracción, líneas puras y nobleza de materiales. La estructura es de hormigón y las losas son vistas. Las terrazas se apoyan sobre una grilla de perfiles metálicos de sección esbelta generando mayor sensación de liviandad.


2636 flats propone un abra en el perfil compacto de la ciudad, generando una propuesta donde lo NO construido se hace materia y el vacío cobra significado como lugar esencial. Entendemos este edificio como una metáfora de la relación entre interior y exterior. Un diálogo constante entre naturaleza y arquitectura. Poder disfrutar de los diferentes estados del tiempo a través de las estaciones del año, la lluvia, el sol y las sombras hacen que cada día sea diferente.



















