
-
Arquitectos: Community Development Centre (CODEC)
- Área: 7333 ft²
- Año: 2025
-
Fotografías:Asif Salman

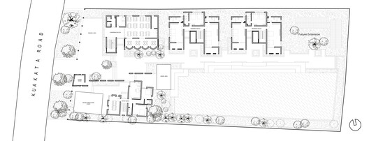
Descripción enviada por el equipo del proyecto. El Centro de Capacitación Kuakata, diseñado por CODEC Design Studio, es una instalación construida con un propósito que apoya el desarrollo de habilidades y la creación de capacidades para las comunidades costeras en Bangladesh. Ubicado cerca de asentamientos pesqueros, zonas ecológicas y rutas turísticas, ofrece capacitación residencial en gestión de recursos costeros, turismo sostenible y preparación para desastres. Desarrollado a través de un proceso de construcción por fases, el proyecto enfatiza la calidad, la sostenibilidad y la relevancia contextual. Contratistas y trabajadores locales fueron involucrados desde el principio, asegurando no solo la eficiencia en la construcción, sino también la transferencia de habilidades y la apropiación comunitaria del centro.

La resiliencia climática ha sido central en el enfoque arquitectónico. Dada la vulnerabilidad de Kuakata a ciclones, inundaciones e intrusión salina, las estructuras están elevadas para resistir las marejadas estacionales. Estrategias de enfriamiento pasivo reducen la dependencia de sistemas mecánicos. Un largo cuerpo de agua en el lado sur funciona como un reservorio de agua dulce en una región donde el agua subterránea es a menudo salina o contaminada con arsénico. Al mismo tiempo, mejora el confort térmico al enfriar las brisas del sur antes de que ingresen al edificio. La ventilación y la iluminación natural se optimizan a través de pantallas de jali, que filtran la luz solar y reducen la ganancia de calor. Estructuralmente, el centro combina muros de carga de ladrillo producidos localmente con vigas y techos de concreto reforzado, ofreciendo durabilidad adecuada para entornos propensos a ciclones.

Las elecciones de materiales reflejan un equilibrio entre resiliencia, responsabilidad ecológica e identidad cultural. Los ladrillos hechos localmente refuerzan la artesanía regional, mientras que las características de construcción verde, como los sistemas de energía solar y las unidades de recolección de agua de lluvia, reducen la huella ambiental y promueven la autosuficiencia.

La disposición interior apoya una variedad de necesidades programáticas. Junto a aulas y salas de seminarios, el centro incluye instalaciones residenciales para aprendices y facilitadores, espacios de comedor que enfatizan alimentos frescos y de origen local, y áreas de reunión multipropósito. Patios al aire libre, pasillos sombreados y zonas ajardinadas crean oportunidades para la interacción informal y la relajación, fomentando un sentido de comunidad dentro del entorno de aprendizaje.


Más allá de funcionar como una instalación educativa, el centro actúa como una plataforma para el aprendizaje experiencial. Su ubicación cerca de la costa permite que los programas de capacitación integren visitas de campo, conectando a los participantes con las dinámicas ambientales, económicas y culturales de la región. Este enfoque inmersivo mejora tanto el conocimiento práctico como la conciencia comunitaria.

En última instancia, el Centro de Capacitación Kuakata se concibe como más que una institución—es un espacio transformador que entrelaza educación, responsabilidad ambiental y desarrollo comunitario. A través de una construcción participativa, un diseño sensible al clima y operaciones sostenibles, se erige como un modelo para el desarrollo costero resiliente en Bangladesh y más allá.






















