
-
Arquitectos: ESTUDIOLOCAL
- Área: 37 m²
- Año: 2025
-
Fotografías:Renzo Rebagliati
-
Proveedores: Casa Roselló , Deco Interiors, Decor Center, Lontec, Scanavini, Trazzo

Descripción enviada por el equipo del proyecto. Ubicado en San Isidro, dentro de una galería comercial en Miguel Dasso, UKE se diseñó en 37 m² como una arquitectura de precisión y atmósfera. El proyecto interpreta elementos tradicionales japoneses desde una mirada contemporánea, silenciosa y táctil.


Desde el exterior, el restaurante se insinúa a través de celosías de madera dispuestas en distintas direcciones, combinadas con vidrio traslúcido y acanalado. Este sistema de filtros genera una relación ambigua con la calle: protege, sugiere, intriga. Un toldo removible, reminiscente de las mizuhiki noren, señala el ingreso con discreción.

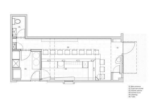
El espacio interior se organiza en torno a una única barra en L, que concentra tanto la atención como la operación. Al ingresar, un techo más bajo y una pequeña mesa lateral configuran un recibo íntimo, desde el cual se proyecta una perspectiva directa hacia el fondo del local. Allí, un closet con nicho y lámpara de tela —de escala doméstica— introduce una pausa visual, casi ritual.


La barra, protagonista formal y funcional, articula el salón principal. Su base de concreto fue vaciada in situ con petates de totora en el encofrado, dejando impresa la huella del negativo natural. El tablero, una sola pieza de madera de casi cinco metros, se diseñó con todos los bordes suavizados, ofreciendo un contacto cómodo al apoyarse. Detrás, una columna despojada de su acabado se encuentra con repisas de acero inoxidable pulido, en un contraste premeditado entre lo crudo y lo preciso.


Cada pieza de mobiliario fue diseñada específicamente para el proyecto, incluyendo las lámparas de mesa en la barra. Arquitectura y diseño industrial se integraron en un proceso que combinó definición técnica con apertura al trabajo en taller. Se trazaron los detalles de cada elemento, dejando a su vez espacio para ajustes y decisiones materiales durante la fabricación.


La atmósfera se construye desde una comprensión japonesa de la importancia de la penumbra. Lámparas de tela y papel filtran la luz, invitando a un espacio íntimo que reduce la distancia entre los itamae y los comensales. Los materiales —madera, acero, piedra pizarra negra— se muestran con sus cualidades naturales. En el baño, una luz roja neón y grifería de acero proponen un gesto inesperado, casi cinematográfico.

El diseño de UKE no busca imponerse, sino resonar. Un espacio donde la escala, el gesto y la materia se alinean con la experiencia.



















