
-
Arquitectos: BOT architektuurcollectief, Import Export Architecture
- Área: 5000 m²
- Año: 2025
-
Fotografías:Jeroen Verrecht
-
Proveedores: Axibeton, Coil, Schüco

Descripción enviada por el equipo del proyecto. PIKOH, Escuela de Artes en Hasselt, ofrece educación secundaria en artes visuales, medios y artes escénicas. Ante el crecimiento exponencial de la escuela, surgió la necesidad de un nuevo edificio para el primer grado, con aulas propias, talleres, restaurante, sala multipropósito, gimnasio y áreas administrativas. Este proyecto forma parte de la transformación del campus urbano "Elfde-Linie", inspirado en el modelo de campus estadounidense.


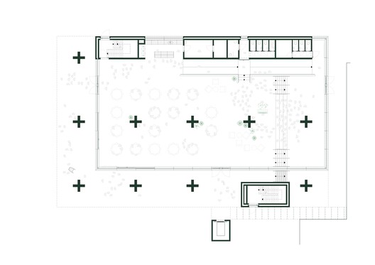
El cercano río Demer y el parque Kapermolen actúan como anclajes naturales en este nuevo diseño. La propuesta presenta un volumen claro y compacto de cinco pisos, estratégicamente ubicado en el borde del terreno, a 40 metros del Demer, dejando espacio para un amplio patio de juegos verde.

La topografía existente del sitio se integra mediante una serie de escaleras interiores y exteriores que conectan los distintos edificios escolares y sirven como espacios informales de encuentro. La arquitectura refleja la visión educativa de PIKOH: un entorno de aprendizaje híbrido, lleno de luz natural, con una estructura abierta y libre de pasillos tradicionales.

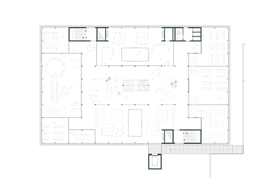
Las aulas teóricas y los estudios de arte se ubican en el mismo nivel para fomentar la interacción. Los pisos se organizan en “nidos de aprendizaje”: grupos de tres aulas situadas en los extremos del edificio. En el lado sur, los “clústeres de innovación” respaldan la enseñanza colaborativa, mientras que el lado norte alberga espacios de aprendizaje más tradicionales.

A lo largo de las fachadas longitudinales, los talleres técnicos acristalados y los estudios de arte abiertos mejoran la visibilidad y la conexión. El “foro”, situado en el corazón del edificio, está concebido como un espacio multifuncional que funciona como punto de encuentro, área de exhibición, estudio abierto o zona de debate. El plano abierto (‘plan libre’) genera paisajes de aprendizaje dinámicos, permitiendo que las funciones fluyan con naturalidad y que la experiencia del estudiante sea coherente y estimulante.


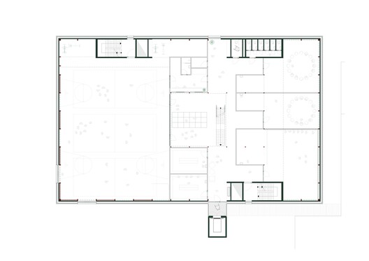
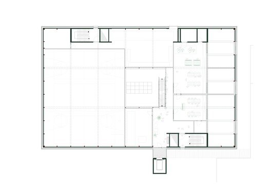
Los pisos superiores albergan espacios para deportes, danza y teatro, organizados en torno a un ágora central. El diseño se inspira en el estudio de artista industrial arquetípico: sobrio, robusto y adaptable. La planta baja, transparente, ofrece vistas al parque y al patio de juegos circundante, mientras que las distintivas columnas cruzadas de concreto le confieren al edificio una identidad fuerte y reconocible. El revestimiento de aluminio aporta un sutil brillo a las fachadas, integrándose con el entorno verde. Las ventanas horizontales, a escala humana y dispuestas en una cuadrícula de 1x1 m, ofrecen vistas panorámicas del paisaje y refuerzan la conexión del edificio con su contexto.


























