Casa Unpuente / Paolini Arquitectos

Casa Unpuente / Paolini Arquitectos - Imagen 2 de 21Casa Unpuente / Paolini Arquitectos - Imagen 3 de 21Casa Unpuente / Paolini Arquitectos - Fotografía exteriorCasa Unpuente / Paolini Arquitectos - Imagen 6 de 21Casa Unpuente / Paolini Arquitectos - Más Imágenes+ 16

  • Categoria: Casas
  • Arquitectos Líderes: Francisco Paolini, Manuel Pozzo
  • Equipo De Diseño: Grupo Paolini
  • Ingeniería Y Consultoría > Civil: Incorp
  • Construcción General: Bauvek
  • Arquitectura Del Paisaje: Mario Suarez
  • Pais: Argentina
Más informaciónMenos información
Casa Unpuente / Paolini Arquitectos - Imagen 5 de 21
© Gonzalo Viramonte

Unpuente es una vivienda unifamiliar concebida como un refugio multifuncional, que equilibra el encuentro familiar de fin de semana con la intimidad en pareja. Emplazada en un barrio cerrado sobre el Embalse Los Molinos, en el Valle de Calamuchita, Córdoba, la residencia se integra a un entorno natural privilegiado, rodeado de bosque y con vistas directas al lago. Este contexto idílico no solo promueve la unión familiar en la paz de la naturaleza, sino que también fomenta la conexión con el deporte acuático, reflejando un estilo de vida activo y sereno.

Casa Unpuente / Paolini Arquitectos - Fotografía exterior
© Gonzalo Viramonte

La casa intentó desde el principio ser Unpuente, un puente generacional, un puente entre el bosque y el lago, un puente de unión entre los anfitriones y las visitas, un puente transparente, sin prejuicios y con mucho disfrute.

Casa Unpuente / Paolini Arquitectos - Imagen 20 de 21
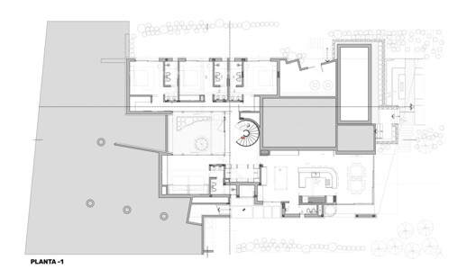
Planta Baja

El diseño y la distribución de Unpuente responden directamente al principal desafío del terreno: su pronunciada pendiente. La solución arquitectónica se materializa en una casa de dos plantas, con un acceso distintivo a través de un puente que, sutilmente, evoca la forma de una lengua extendiéndose hacia el lago. En la planta alta, al nivel de la calle, se organiza el programa principal: la suite principal, las amplias áreas sociales y un acceso de servicio resuelto a través de una cochera. Las áreas sociales fueron estratégicamente orientadas con una ligera inclinación, maximizando así las vistas panorámicas al embalse e incorporando una galería, solárium y piscina que amplifican la experiencia del exterior.

Casa Unpuente / Paolini Arquitectos - Fotografía interior, Sala de estar, Madera, Fijación Vigas, Sillas
© Gonzalo Viramonte
Casa Unpuente / Paolini Arquitectos - Fotografía interior, Cocina, Madera, Encimera, Fijación Vigas, Sillas
© Gonzalo Viramonte

La conexión entre niveles se realiza a través de una escalera helicoidal central, que no solo funciona como elemento escultórico de gran impronta, sino que también se ilumina dramáticamente mediante una lucera cenital. Esta desciende a la planta baja semienterrada, un nivel diseñado con patios centrales y laterales que aseguran ventilación cruzada, iluminación natural y una privacidad excepcional.

Casa Unpuente / Paolini Arquitectos - Fotografía interior, Sala de estar, Madera, Concreto, Fijación Vigas
© Gonzalo Viramonte
Casa Unpuente / Paolini Arquitectos - Imagen 18 de 21
© Gonzalo Viramonte

Aquí se ubica un SUM (Salón de Usos Múltiples), concebido como un espacio versátil para el encuentro con amigos, equipado con parrilla y áreas de juegos. Su diseño permite un acceso independiente, facilitando la separación de ambientes y actividades sin interferir con la dinámica general de la vivienda.

Casa Unpuente / Paolini Arquitectos - Imagen 11 de 21
© Gonzalo Viramonte

La selección de materiales y acabados responde a la premisa familiar de bajo mantenimiento y durabilidad. Predominan elementos nobles y rústicos como la madera, el hormigón visto y el hierro, que no solo garantizan resistencia al paso del tiempo y al entorno natural, sino que también confieren una estética sólida y atemporal al conjunto.

Casa Unpuente / Paolini Arquitectos - Imagen 3 de 21
© Gonzalo Viramonte

Galería del Proyecto

Ver todoMostrar menos
Sobre esta oficina
Cita: "Casa Unpuente / Paolini Arquitectos" 21 sep 2025. ArchDaily en Español. Accedido el . <https://www.archdaily.cl/cl/1034103/casa-un-puente-paolini-arquitectos> ISSN 0719-8914

Has seguido tu primera cuenta!

¿Sabías?

¡Ahora recibirás actualizaciones de las cuentas a las que sigas! Sigue a tus autores, oficinas, usuarios favoritos y personaliza tu stream.