
-
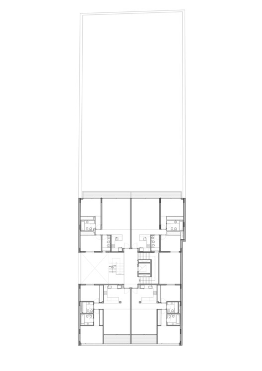
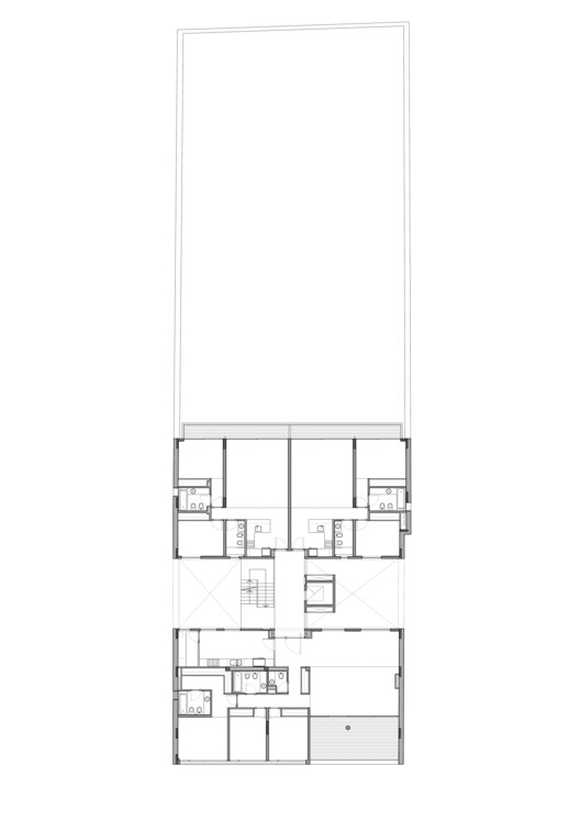
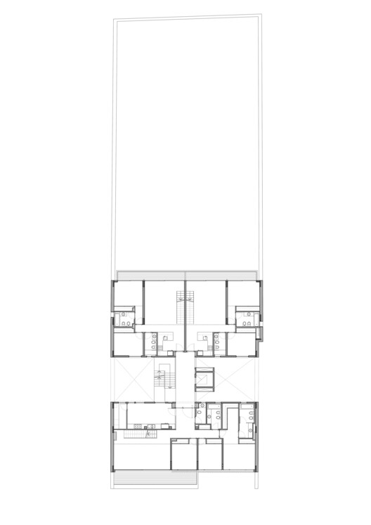
Arquitectos: Dieguez Fridman
- Área: 2200 m²
- Año: 2021
-
Fotografías:Federico Cairoli

La historia de las ideas en arquitectura es la historia de las casas. Ninguna otra unidad de significado o escala trata de manera tan directa con la vida -en sus manifestaciones tanto física como psíquica- y su relación con la forma. La casa es siempre una narrativa de apariencia, disimulo, glamour y perfidia. Todas las casas son "máquinas de desear", ricos y ambiguos escenarios de la domesticidad criminal de la sociedad burguesa. Sanford Kwinter.

























