
-
Arquitectos: Estudio Herreros
- Área: 12850 m²
- Año: 2025
-
Fotografías:Luis Díaz Díaz, Manuel Vicente

Descripción enviada por el equipo del proyecto. En 2011, setenta años después de la llegada del ferrocarril a Santiago de Compostela, la trinchera ferroviaria situada a las afueras de la ciudad seguía constituyendo una barrera casi infranqueable entre el centro histórico y los barrios que habían surgido al sur de la vía, con Pontepedriña a la cabeza. Al mismo tiempo, este límite tuvo como efecto secundario la preservación del área natural de Las Brañas del Sar —un enclave de incalculable valor ecológico— que permaneció intacto durante todo ese tiempo.

El proyecto ganador del concurso internacional convocado por ADIF para la nueva estación de tren de alta velocidad situó el edificio de pasajeros de forma transversal sobre las plataformas, integrado a una amplia pasarela —inaugurada en 2011— que resolvía la intermodalidad entre la estación ferroviaria, la de autobuses y los aparcamientos. Además de este papel funcional, la pasarela aportó un beneficio urbano clave: conectar el centro histórico y sus expansiones con el sur de la ciudad, los parques del Sar y la Ciudad de la Cultura, recomponiendo la relación entre dos áreas tradicionalmente separadas por la fuerte pendiente y el propio trazado ferroviario.

El hecho de que la mayoría de los usuarios del tren accedan a la estación a pie, y que quienes llegan a la ciudad en tren la abandonen del mismo modo, refuerza la premisa del proyecto de situar el edificio de pasajeros al nivel de la ciudad. Siguiendo este criterio, la estación se organiza según el esquema típico de un aeropuerto: un nivel inferior, junto a las vías, concentra todos los traslados motorizados —taxis, vehículos privados y de alquiler, autobuses urbanos y de larga distancia—, mientras que el nivel superior, conectado con la trama urbana, funciona como plataforma de salidas y llegadas sobre los andenes. El espacio central de este nivel es el luminoso vestíbulo de pasajeros, desde el cual se accede directamente a los trenes a través de una serie de pasarelas que garantizan una operación intuitiva, eficiente y segura.

La simplicidad del esquema establece un diálogo armonioso con la antigua estación, especialmente con su amplia marquesina que protege los movimientos de los pasajeros en los andenes. Al mismo tiempo, las dos plazas de diseño contemporáneo situadas en los extremos del complejo —la Plaza de la Estación, hacia la ciudad, y la Plaza Clara Campoamor, junto a la Reserva Natural— se presentan como la primera imagen que recibe el viajero recién llegado a Santiago de Compostela.



La logística del movimiento vertical gira en torno a dos núcleos —norte y sur—, conectados por la pasarela que funciona de manera efectiva como una calle dentro del sistema urbano. El núcleo norte enlaza la plataforma de traslados vehiculares con la Plaza de la Estación y el hall, mientras que el núcleo sur conecta la Plaza Clara Campoamor con la pasarela. Ambos núcleos cuentan con ascensores aptos para transportar bicicletas y escaleras mecánicas que garantizan la accesibilidad universal en todo el complejo.



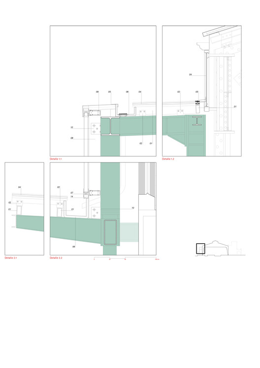
La arquitectura se adapta al sitio mediante una forma orgánica que integra el programa sin concesiones compositivas. La construcción comienza con la instalación de una amplia plataforma de pilares y losas de hormigón prefabricado, sobre la cual se erige el edificio utilizando sistemas de ensamblaje industrializados, cuya ligereza y precisión permiten trabajar sobre las vías sin interrumpir el tráfico ferroviario. La materialidad del envolvente combina una familia de materiales translúcidos, paneles metálicos perforados y techos de zinc —un sector en el que la industria gallega lidera a nivel nacional. En el interior, se busca la máxima luminosidad mediante un uso intensivo de vidrio estructural translúcido que, incluso en días nublados, amplifica la reverberación de la luz natural, generando espacios alegres pensados para una espera confortable.

El proyecto refleja un profundo compromiso social y cívico. Su propuesta más ambiciosa consiste en reconocer la capacidad de la arquitectura para equilibrar polarizaciones urbanas indeseables, mitigar desigualdades sociales y hacer la vida de las personas más placentera, trabajando de manera intensa en sus valores añadidos. Sostenemos que la meta es crear infraestructuras que trasciendan su función logística —cumpliendo siempre con la máxima eficiencia— para convertirse en expresiones de cohesión social y en símbolos de una ciudad que proyecta confianza hacia el futuro.


































