Daniel Portilla [Dapo]

EXPLORA AQUÍ LOS ARTÍCULOS DE ESTE AUTOR

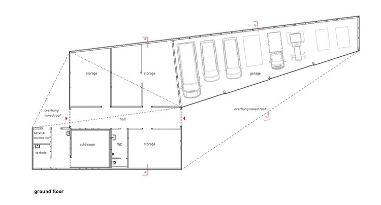
Gran Muro de Warburton / BKK Architects

Gran Muro de Warburton / BKK Architects - Image 12 of 4
© Shannon McGrath

Arquitectos: BKK Architects Ubicación: Victoria, Australia Equipo del proyecto: Simon Knott, Julian Kosloff, Tim Black, Lauren Dornau, Rory Hyde, George Huon, Michael Roper, Michael White, Adi Atic Constructor: Overend Constructions Ingeniero: Design Action Pty Ltd – Patrick Irwin Consultor de Construcción: Group II Building Surveyors Superficie: 322 m2 Fecha: 2008 Fotografías: Shannon McGrath

Gran Muro de Warburton / BKK Architects - Image 7 of 4Gran Muro de Warburton / BKK Architects - Image 8 of 4Gran Muro de Warburton / BKK Architects - Image 6 of 4Gran Muro de Warburton / BKK Architects - Image 14 of 4Gran Muro de Warburton / BKK Architects - Más Imágenes+ 10

AA Visiting School: Deserta – Parte 2

AA Visiting School: Deserta – Parte 2 - Image 3 of 4
Equipo Deserta 2011

Como ya le contamos en el post anterior, hace exactamente una semana concluyó la segunda versión de la Visiting School de la AA en Chile, denominada “Deserta”. El workshop comenzó con un viaje de 3 días al Desierto de Atacama, donde visitamos el campamento minero de María Elena (objeto de estudio del programa), el campamento abandonado de Pedro de Valdivia, y los alrededores de San Pedro de Atacama, donde, en la Laguna Tebenquinche, Tim Street-Porter realizó una sesión fotográfica reeditando con estudiantes la imagen icónica tomada a Banham hace más de 30 años.

Cine y Arquitectura: "Tron: El Legado"

Cine y Arquitectura: "Tron: El Legado" - Image 3 of 4

Para empezar el año, les recomendamos esta película que, como ya les comentamos, fue dirigida nada menos que por un arquitecto. La cinta, se basa en la primera edición de Tron del año 1982 para plantear un mundo paralelo donde los softwares controlan su funcionamiento y los espacios donde se habita. La gráfica de la película es potente y reconocible, destacando la participación de la banda Daft Punk en la banda sonora y actuando en la misma trama, cuya imagen calza perfecto con este mundo virtual-digital. En Chile, es la última semana en carteleras, recuerden aprovechar, ya que está en 3D…

AA Visiting School: Deserta - Parte 1

AA Visiting School: Deserta - Parte 1 - Image 3 of 4
María Elena © Tim Street-Porter

Hace un par de días concluyó la segunda versión de la Visiting School en Chile, organizada por la Architectural Association en conjunto con la Pontificia Universidad Católica de Chile. A diferencia del año anterior, esta vez el enfoque fue un tanto más teórico y especulativo, y el terreno de trabajo se trasladó unos 1.500 km. al norte nuestro país, en pleno Desierto de Atacama.

AA Visiting School: Deserta - Parte 1 - Image 1 of 4AA Visiting School: Deserta - Parte 1 - Image 2 of 4AA Visiting School: Deserta - Parte 1 - Image 6 of 4AA Visiting School: Deserta - Parte 1 - Image 9 of 4AA Visiting School: Deserta - Parte 1 - Más Imágenes+ 5

Centro Cultural Mariehøj / WE architecture + Sophus Søbye Arkitekter

Centro Cultural Mariehøj / WE architecture + Sophus Søbye Arkitekter - Image 17 of 4
© WE architecture + Sophus Søbye Arkitekter

Arquitectos: WE architecture + Sophus Søbye Arkitekter Ubicación: Holte, Dinamarca Equipo de Diseño: Marc Jay, Julie Schmidt-Nielsen, Hermanus Neikamp, Lawrence Mahadoo, Lena Reeh Rasmussen, Jenny Selldén, Zsofia Horvath, Nora Fossum, Søren Thiesen, Luis Gill Colaboradores: Sophus Søbye Arkitekter, MASU Planning, Øllgaard Consulting Engineer, Spangenberg & Madsen Consulting Engineer, Hausenberg Cliente: Municipalidad de Rudersdahl Superficie: 8,000 m2 (restauración), 800 m2 (nuevo edificio) Fecha: 2010 Fotografías: WE architecture + Sophus Søbye Arkitekter

Centro Cultural Mariehøj / WE architecture + Sophus Søbye Arkitekter - Image 7 of 4Centro Cultural Mariehøj / WE architecture + Sophus Søbye Arkitekter - Image 2 of 4Centro Cultural Mariehøj / WE architecture + Sophus Søbye Arkitekter - Image 8 of 4Centro Cultural Mariehøj / WE architecture + Sophus Søbye Arkitekter - Image 4 of 4Centro Cultural Mariehøj / WE architecture + Sophus Søbye Arkitekter - Más Imágenes+ 19

Casa del Arte / De Leon & Primmer Architecture Workshop

Casa del Arte / De Leon & Primmer Architecture Workshop - Arquitectura De Interiores
© Roberto de Leon

Arquitectos: De Leon & Primmer Architecture Workshop Ubicación: Louisville, Kentucky, USA Superficie: 390 m2 Fecha: 2009 Fotografías: Roberto de Leon

Casa del Arte / De Leon & Primmer Architecture Workshop - Arquitectura De InterioresCasa del Arte / De Leon & Primmer Architecture Workshop - Arquitectura De InterioresCasa del Arte / De Leon & Primmer Architecture Workshop - Arquitectura De InterioresCasa del Arte / De Leon & Primmer Architecture Workshop - Arquitectura De InterioresCasa del Arte / De Leon & Primmer Architecture Workshop - Más Imágenes+ 13

AA Visiting School México: "Recovering Waterscapes"- Programa de Charlas

AA Visiting School México: "Recovering Waterscapes"- Programa de Charlas - Image 1 of 4

Como les comentamos hace unas semanas, la Architectural Association, en el marco de su Visiting School en Ciudad de México, ofrecerá una serie de charlas que comienzan mañana Miércoles 5 de Enero en la Universidad Iberoamericana. Hasta el 14 de Enero, con expositores como Charles Waldheim (Director de la escuela de Paisaje de Harvard), Eva Castro (Directora MA Landscape Urbanism de la AA), e Iñaki Echeverría (Urbanismo, Paisaje y Arquitectura de la Universidad Iberoamericana), entre otros.

Les dejamos el programa detallado con todas las fechas y títulos de cada charla.

El Proyecto Zephyros / Koutsoftides Architects

El Proyecto Zephyros / Koutsoftides Architects - Image 24 of 4
© Koutsoftides Architects

Arquitectos: Koutsoftides Architects Ubicación: Pomos, Chipre Equipo: G.Kolonias Ingeniero Estructural: T.Karseras m/e consultant Superficie: 351 m2 Fecha: 2009 Fotografías: Costas Koutsoftides, Christos Papantoniou, Costas Efstathopoulos

El Proyecto Zephyros / Koutsoftides Architects - Image 15 of 4El Proyecto Zephyros / Koutsoftides Architects - Image 9 of 4El Proyecto Zephyros / Koutsoftides Architects - Image 12 of 4El Proyecto Zephyros / Koutsoftides Architects - Image 13 of 4El Proyecto Zephyros / Koutsoftides Architects - Más Imágenes+ 24

Kes / AAT + Makoto Yokomizo Architects

Kes / AAT + Makoto Yokomizo Architects - Arquitectura Residencial
© AAT+Makoto Yokomizo Architects

El estudio AAT+Makoto Yokomizo Architects ha concentrado dentro de un área excepcionalmente limitada un diseño con un impresionante look minimalista. Compartiendo un estacionamiento de motos en el nivel de la calle, las transparentes residencias flotan sobre la calle y ponen la actividad de cada una de las unidades en pantalla.

Casa Cielo Azul / o2 Architecture

Casa Cielo Azul / o2 Architecture - Image 8 of 4
© NuVue Interactive

Arquitectos: o2 Architecture Ubicación: California, USA Fecha: 2009 Modelos prefabricados: Blue Sky Homes Fotografías: NuVue Interactive

Casa Cielo Azul / o2 Architecture - Image 7 of 4Casa Cielo Azul / o2 Architecture - Image 20 of 4Casa Cielo Azul / o2 Architecture - Image 21 of 4Casa Cielo Azul / o2 Architecture - Image 11 of 4Casa Cielo Azul / o2 Architecture - Más Imágenes+ 19

Park City / Építész Stúdió

Park City / Építész Stúdió - Image 5 of 4
© Építész Stúdió

Arquitectos: Építész Stúdió Ubicación: Moscú, Rusia Arquitectos a cargo: Richard Hőnich, Tamás Fialovszky Equipo: Tamás Fenes, Katalin Avarkeszi, Máté Görbicz, Sándor Mohácsi, Eszter Bors Superficie: 9,375 m2 Superficie construida: 29,000 m2 Número de Pisos: Nivel de la calle +21 Fotografías: Courtesy of Építész Stúdió

Park City / Építész Stúdió - Image 8 of 4Park City / Építész Stúdió - Image 3 of 4Park City / Építész Stúdió - Image 2 of 4Park City / Építész Stúdió - Image 4 of 4Park City / Építész Stúdió - Más Imágenes+ 4

Casa con Persianas de Vidrio / StudioGreenBlue

Casa con Persianas de Vidrio / StudioGreenBlue - Imagen Principal
© StudioGreenBlue

Arquitectos: StudioGreenBlue Equipo: Mitsuharu Kojima, Wataru Kobayashi Ubicación: Ota, Gunma, Japón Superficie: 111,79 m2 Fecha: 2007 Fotografía: StudioGreenBlue

Casa con Persianas de Vidrio / StudioGreenBlue - Image 17 of 4Casa con Persianas de Vidrio / StudioGreenBlue - Image 13 of 4Casa con Persianas de Vidrio / StudioGreenBlue - Image 4 of 4Casa con Persianas de Vidrio / StudioGreenBlue - Image 3 of 4Casa con Persianas de Vidrio / StudioGreenBlue - Más Imágenes+ 16

Casa del Té / David Jameson Architect

Casa del Té / David Jameson Architect - Image 18 of 4
© Paul Warchol Photography

Arquitectos: David Jameson Architect, Inc. Ubicación: Bethesda, Maryland, USA Principal: David Jameson Arquitecto a cargo: Christopher Cabacar Ingeniero Estructural: Linton Engineering Contratista: RKI, Inc. Superficie: 16,7 m2 Fecha: 2009 Fotografía: Paul Warchol Photography

Casa del Té / David Jameson Architect - Image 17 of 4Casa del Té / David Jameson Architect - Image 19 of 4Casa del Té / David Jameson Architect - Image 1 of 4Casa del Té / David Jameson Architect - Image 11 of 4Casa del Té / David Jameson Architect - Más Imágenes+ 18

Cine y Arquitectura: "Play Time"

Cine y Arquitectura: "Play Time" - Image 1 of 4

No es novedad que Jacques Tati tenía un especial sentido de cómo tratar los espacios para sus cintas, pero más allá de eso fue un adelantado en cuanto a visualizar la problemática que significaría el desarrollo modernista, desde un nivel arquitectónico, casi mundano, hasta la escala urbana de las ciudades y los sistemas dentro de ellas. Play Time, estuvo lejos de ser un éxito en ventas y es más, no fue muy bien recibida por la crítica abierta. Pero a más de 40 años de su estreno, ya es un claro clásico para los cinéfilos y amantes de la arquitectura.

Distancia de Niebla / StudioGreenBlue

Distancia de Niebla / StudioGreenBlue - Image 10 of 4
© StudioGreenBlue

Arquitectos: StudioGreenBlue Ubicación: Konosu, Saitama, Japón Equipo: Mitsuharu Kojima, Wataru Kobayashi Superficie: 104,87 m2 Fecha: 2010 Fotografías: StudioGreenBlue

Distancia de Niebla / StudioGreenBlue - Image 12 of 4Distancia de Niebla / StudioGreenBlue - Image 17 of 4Distancia de Niebla / StudioGreenBlue - Image 16 of 4Distancia de Niebla / StudioGreenBlue - Image 8 of 4Distancia de Niebla / StudioGreenBlue - Más Imágenes+ 20

Puente en Esch / Metaform Architects

Puente en Esch / Metaform Architects - Infraestructura
© Steve Troes Fotodesign

Arquitectos: Metaform Architects Ubicación: Esch, Alzette, Luxembourgo Dimensiones: 150 mt Ingeniero Estructural: T6-Ney&partners Iluminación: Speirs and Major Associates Contratista: CDC sàrl & Cie Secs Fecha: 2008 – 2009 Fotografías: Steve Troes Fotodesign

Puente en Esch / Metaform Architects - InfraestructuraPuente en Esch / Metaform Architects - InfraestructuraPuente en Esch / Metaform Architects - InfraestructuraPuente en Esch / Metaform Architects - InfraestructuraPuente en Esch / Metaform Architects - Más Imágenes+ 7

Taller Sharp Cut / Atelier st

Taller Sharp Cut / Atelier st - Image 6 of 4
© Bertram Bölkow

Arquitectos: Atelier st Ubicación: Eibenstock, Alemania Colaboradores: Ludwig Uphues, Luise Mayer Ingeniero Estructural: HHT Engineers Cliente: Federal State Saxony Superficie: 347 m2 Fecha: 2010 Fotografías: Bertram Bölkow

Taller Sharp Cut / Atelier st - Image 9 of 4Taller Sharp Cut / Atelier st - Image 5 of 4Taller Sharp Cut / Atelier st - Image 7 of 4Taller Sharp Cut / Atelier st - Image 2 of 4Taller Sharp Cut / Atelier st - Más Imágenes+ 7

1292357162-kanagan-batman-ace-01