
-
Arquitectos: OADD Arquitectos
- Área: 110 m²
- Año: 2025
-
Fotografías:Bruto Studio
-
Proveedores: American Hydrotech, Faplac, Ilva, MACROLED, ferrum

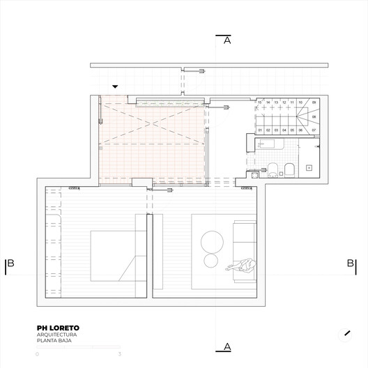
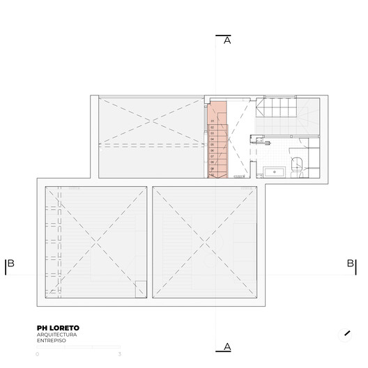
Descripción enviada por el equipo del proyecto. PH Loreto corresponde a la reforma integral de una vivienda unifamiliar, la cuarta de cinco unidades funcionales que componen un conjunto tipo PH en el barrio de Colegiales, Buenos Aires. La construcción original, de mediados del siglo XX, había sido objeto de sucesivas intervenciones orientadas a la ganancia de superficie cubierta, en detrimento de la calidad espacial, la iluminación natural y la ventilación cruzada. La intervención surge a partir de la necesidad de reorganizar la vivienda para responder a las dinámicas contemporáneas del habitar, integrando espacios para vivir y trabajar, y recuperando el vínculo con la luz, el aire y el espacio exterior.




























