
-
Arquitectos: Biocons Arquitectos
- Área: 210 m²
- Año: 2025
-
Fotografías:Leonardo Méndez

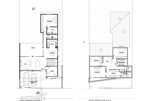
Descripción enviada por el equipo del proyecto. Esta reforma y ampliación de una vivienda unifamiliar se ubica en la ciudad de Lambaré, dentro del Área Metropolitana de Asunción, Paraguay. El proyecto se desarrolla en un barrio consolidado, de morfología predominantemente horizontal, en un lote con orientación este-oeste.












