
-
Arquitectos: Javier Prieto Arquitectos
- Área: 1894 m²
- Año: 2024
-
Fotografías:Germán Cabo
-
Proveedores: Carpintería Almar S.L., Carpintería Cortizo, Cifre Cerámica, Comon, DANOSA, Guardian Glass, Mapei, Placo Saint Gobain, Prefabricados Hermo, Zardoya Otis

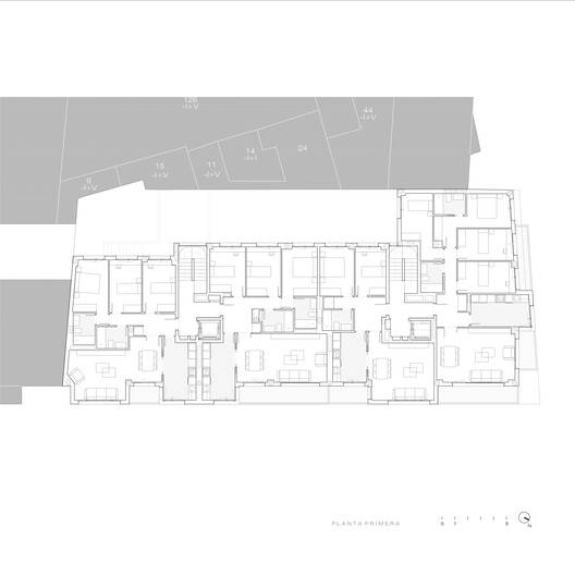
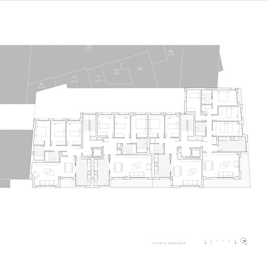
Descripción enviada por el equipo del proyecto. El proyecto parte de la necesidad de sustituir un edificio fuera de ordenación cuya implantación no respondía a la trama urbana. Su posición generaba una barrera física que interrumpía las circulaciones peatonales del barrio y dificultaba la conexión entre los distintos frentes de la manzana. La nueva edificación se concibe como una pieza capaz de integrarse en el entorno, resolver las discontinuidades existentes y mejorar la calidad del espacio público.






























