
-
Arquitectos: MIEL Arquitectos
- Área: 190 m²
- Año: 2025
-
Fotografías:Jose Hevia
-
Proveedores: Duravit, Branca Ebanistes, Ca2l, Ceramica Ferres, Modular Lighting Instruments, Vitralls, ecoclay

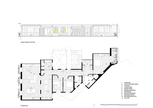
Descripción enviada por el equipo del proyecto. LONG FLAT. Reforma de un piso en el Eixample de Barcelona por Miel Arquitectos Una Familia de Boston con raíces en Shanghái busca construir su sueño, tener un pedacito de Barcelona para retirarse algún día y mientras tanto escaparse todo lo que puedan. Un hogar que soporte el paso del tiempo porque aún les falta para saltar del tren.

























